Utrustning

De 6 stugorna är identiska och var och en är på 75 kvm. Planlösning. Varje stuga rymmer lätt upp till 8 personer och är väl utrustade med allt vad som kan behövas.

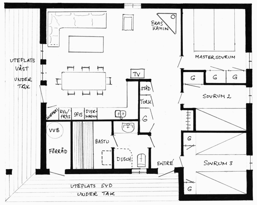
Entré

Entré som övergår i storstuga med kappalkov, dubbelgarderob, torkskåp samt städskåp.

Sovavdelning

Ett rum med 4 bäddar (två våningssängar) samt 2 garderober, ett rum med 2 bäddar (en våningssäng), varav den nedre extra bred, samt 1 garderob, master sovrum med två bäddar samt 2 garderober

Toalettavdelning

Innehåller toalett, tvättställ och dusch, som leder till en stor bastu.

Storstuga och kök

Storstugan har braskamin, TV, svängd soffa för 5 personer, soffbord, fåtölj, matbord med 8 platser. Köket är mycket väl utrustat med kyl och frys, spis med ugn, diskmaskin, microugn, kaffebryggare, brödrost samt porslin, glas och köksutensilier.

Förråd

Nås från förstukvisten. Låsbart för förvaring av bl a skidor.

Uteplatser

Det finns två uteplatser under tak. En på entrésidan åt söder och en på västra sidan, som kan nås från utsidan eller direkt från köket.

Planlösning